茅ヶ崎市浜須賀

BUY

物件情報

茅ヶ崎市浜須賀

5,480万円~5,980万円

LD

LD

キッチン

Bedroom

浴室

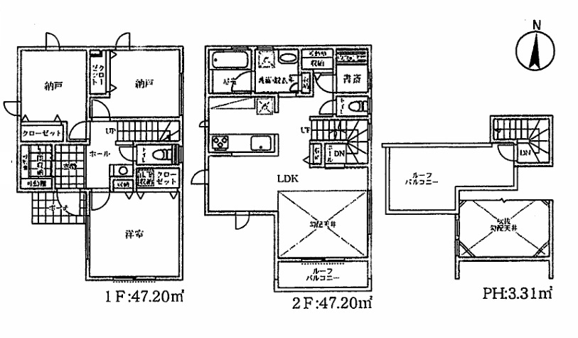
plan_1

■最終3棟!!開発分譲地・安心の地元工務店♪
■18帖越えリビング吹抜けで解放感&陽当り良好♪
■各室収納+ロフトなど空間を有効に使える間取り◎
■小学校徒歩4分・中学校徒歩12分で通学も安心♪ 
■海まで500m徒歩7分♪海を身近に感じる暮らし♪

所在地

茅ヶ崎市浜須賀5823

交通

JR東海道線「茅ヶ崎」駅徒歩35分 または
「辻堂」駅バス12分浜須賀停歩4分

販売戸数

3戸

価格

5,480万円~5,980万円(税込)

土地面積

100.80㎡~102.56㎡

建物面積

94.46㎡~99.77㎡

構造

木造2階建

用途地域

第一種低層住居専用地域

建ぺい率

50%

容積率

100%

土地権利

所有権

建築確認
番号

---

完成時期

2026年1月以降

引渡時期

完成後

取引形態

媒介

備考

---

情報更新日

2026/5/11

次回
情報更新日

2026/5/25

この物件についてのお問い合わせ